图知网
搜索
首页
热门推荐
图片分类
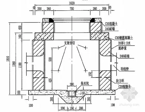
国标图集中的电缆手井是不是有问题?
下载原图
相关图片
07sd1018电力电缆井设计与安装
电缆井设计图
标准电缆井施工图
按照图集05d4—p42电缆井造价大约是多少,我算的和报上来了的差别很大
混凝土做电缆井入何套定额
电井布置图
为你推荐
原创送给朋友的祝福图片集锦最真诚的祝福早上好图片送朋友
圆寸据说是每个男生都想挑战的发型!
抽烟霸气社会女生头像
江北机场航站楼公共区域添12台"救命神器" - 头条 - 重庆发布
专为电竞而生——机械革命游戏本深海泰坦x8ti plus体验
一个电源/二个开关/一个用电器 /寻求电路图
宝马"上帝视角"已开始使用!升级你的云端互联吧
高德纳咨询(gartner)公司的调查结果显示,客户满意度与客户忠诚度之间