图知网
搜索
首页
热门推荐
图片分类
电缆井设计图
下载原图
相关图片
07sd1018电力电缆井设计与安装
按照图集05d4—p42电缆井造价大约是多少,我算的和报上来了的差别很大
混凝土做电缆井入何套定额
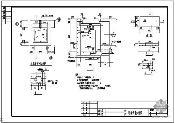
[分享]弱电防爆波电缆井资料免费下载
电井布置图
电缆中间头井施工图
为你推荐
王源超话手写壁纸6p王源说bye~ 9999珍藏文字 奔向美丽新世界
有关以下物品的详细资料: speed racer blu-ray disc
20种折纸信封的折法大全及步骤图解
螃蟹蛋白通过渗透性增加的肠壁进入人体,并将引起过敏反应,引起胃肠道
魔都地铁大变脸有图有真相
中国国旗怎么画简笔画
东海龙王
墨紫