图知网
搜索
首页
热门推荐
图片分类
中原中也太宰治
下载原图
相关图片
中原中也&太宰治
孔方孔先生从叶不羞丶转采于2018-11-07 09:34:55中原中也x太宰治文豪
中原中也&太宰治
中原中也太宰治旧双黑太宰治和中原中也
文豪野犬 太宰治 中原中也 双黑 太中
文豪野犬太宰治中原中也图片
为你推荐
【吴世勋】走路拍照比心
个性qq情侣头像下半身高清很潮的qq情侣头像下半身控图片
绘画素材##绘画参考
高清晰蓝色华丽的路虎揽胜suv越野车壁纸
大刀简笔画关羽大刀简笔画
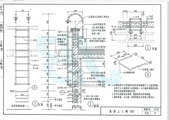
不上人屋面的这个钢爬梯是套钢爬梯子目还是套预埋件子目
intp 其实很笨吗?
立体图形简笔画立体图形怎么画