图知网
搜索
首页
热门推荐
图片分类
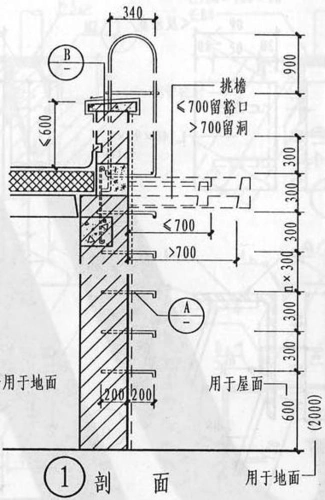
不上人屋面的这个钢爬梯是套钢爬梯子目还是套预埋件子目
下载原图
相关图片
精品工程亮点做法图片集之可折叠式屋面爬梯
屋面上人爬梯细部放大做法
屋面上人梯如何计算如图
钢爬梯平台安全规范40页
屋面钢爬梯图集第67页
请问一下钢爬梯怎么算重量
为你推荐
其实在很多tvb以及香港电影中我们都可以发现,无论男星女星都看起来很
相思赋予谁 小辫儿张云雷
100%能上热门的文案,抖音一发就爆火的文案 容易上热门的情感文案
七剑古代名剑 下天山游龙剑带鞘刀金属武器模型由龙剑合金摆件
孟子义整容前照片曝光 北影校花被拆穿整容十分难堪
西湖十景解说词
抖音贝勒爷邵雨轩真实身份
2020广州车展:长城炮越野皮卡拖挂版售17.08-20.78万