图知网
搜索
首页
热门推荐
图片分类
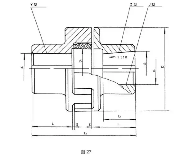
lm(ml)系列梅花形弹性联轴器
下载原图
相关图片
梅花形联轴器几种常见的图纸
梅花形联轴器几种常见的图纸
梅花型弹性联轴器,可以有带锥孔的那种.
梅花联轴器参数 coupling parmeters
请问梅花型联轴器如何连接6mm的轴和25mm的轴
ml型梅花形弹性联轴器3张caxa图纸rar
为你推荐
红色爱的心在白色的地板上流血
仁篆书书法字典
陈紫函全球后援会
《战锤末世鼠疫2》精灵种族历史及凯瑞莲身世科普_精灵种族历史
钛金条线条灯客厅吊顶黑色钛金led线形灯暗藏灯槽线条型灯带铝槽线性
搬运碧蓝幻想姬塔篇视觉图公开2020年3月27日放送
美国画家的风景油画作品,美醉了_the_free_on
五岁前宝宝身高体重对照表