图知网
搜索
首页
热门推荐
图片分类
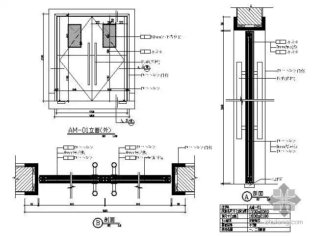
[图块/节点]某酒店报告大厅双扇门详图
下载原图
相关图片
某地区双开门设计装修方案cad大样图
门定额中的无腰双扇 里面的腰和扇是什么意思 平开玻璃门我是不是
厨房门详图(双开)
分享双开门cad节点资料下载
一种双包平开门的制作方法
一种具有报警功能的双开门的制作方法
为你推荐
平铺壁纸
皮卡丘手机壁纸
安井腰花肠
成都一日自驾免费景点(成都一日自驾游哪里好玩)
《英雄联盟》原画更新杰斯 巴德 猪女等
迷宫一样的小巷子.怕怕,出不来了
权杖骑士 圣杯十
水浒纸牌120张