图知网
搜索
首页
热门推荐
图片分类
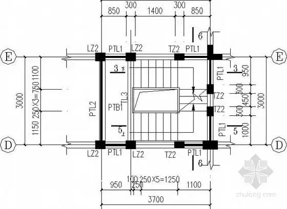
这种三跑的楼梯图形算量怎么画呢如果手算的话应该算哪些怎么算呢希望
下载原图
相关图片
自建房三跑楼梯怎么设计?
各位前辈们画转角三跑楼梯我按照图纸在构件中输入的参数但是模型出来
gtj2021这样三跑楼梯该如何画谢谢老师
这个是三跑的楼梯.有点急,准备下基础了.
三跑楼梯,平台梁位置对么,以这个标准层在pkpm中组装成三层,却是乱的
[分享]3跑楼梯设计资料免费下载
为你推荐
关晓彤自调头像
文字 减肥励志壁纸 瘦下来吧
蓝忘机图片:陌上人如玉,公子世无双
新版绝代双骄(2020)古灵精怪 苏樱 梁洁饰自截cut 壁纸
斗罗大陆手游怎样换六翼天使武魂
enakei
几何抽象图案图片
可爱粉色花边格子背景素材