图知网
搜索
首页
热门推荐
图片分类
bosch/博世 dwf98wc20w新品5d油烟机燃气灶大吸力自清洁欧式烟灶套餐
下载原图
相关图片
适用siemens/西门子lc46ra959w适用欧式排吸抽油烟机家用厨房大吸
抽烟机 (1)
适用于博西华 西门子jzt- er8pf265mp ls系列油烟机 钢化玻璃面板
保定市保定油烟机安装服务安装油烟机需要注意什么
抽油烟机类
[e636ah]-华帝-华帝e636ah抽油烟机-抽油烟机-华帝股份有限公司官方
为你推荐
倪妮 #倪妮西出玉门 #又美又飒 #倪妮天选叶流西 西出玉 - 抖音
情趣猫耳美女私房二次元动漫桌面壁纸
90年代老歌十二大美女闽南语歌曲《人生的第一步 》- 王彩桦
《血观音》:棠府群娥,个个明是一盆火,暗是一把刀
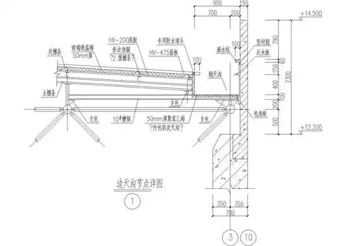
某边天沟节点构造cad设计详图
67正在看书的男孩简笔画 67正在看书的男孩简笔画怎么画-养娃家
感性的唯美句子
张彤加盟《玫瑰炒肉丝》 再饰刁钻女毫无压力