图知网
搜索
首页
热门推荐
图片分类
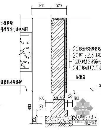
dwg 亲水平台施工图2 亲水平台 亲水平台 投稿网友:ge192121976(已
下载原图
相关图片
亲水平台剖面cad图
亲水平台cad结构详图
亲水平台结构详图
亲水平台平立剖面图,有基本的尺寸标注,并有详细地施工材料等,图纸很
景观亲水平台节点详图
[分享]亲水平台剖面详图资料下载
为你推荐
电焊机全网通最小的家用220v伏型小型电焊机小行便携式最小万能.
意大利哪里有值得玩的推荐_感受意大利罗马台伯岛独特魅力
学生优秀英语手抄报作品欣赏:中秋节mid autumn day
抱着自己睡
印度疫情最惨烈画面曝光总理亲人身亡专家变种病毒已在美加传播
郭女的姓氏头像图片 女生头像图片大全 -【爱个性】
西伯利亚哈士奇狗头圈复古