图知网
搜索
首页
热门推荐
图片分类
官方网上书店16j916-1图集链接:https://item.jd.com/1240324250.html
下载原图
相关图片
图集解读图解16j9161住宅排气道一各大修编亮点
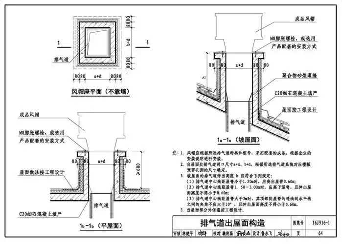
16j916-1住宅排气道出屋面做法(一)
16j916-1住宅排气烟道图集 电子版
图集解读图解16j9161住宅排气道一各大修编亮点
求图集16j91616467页就这一页谢谢大佬
16j916-1住宅排气烟道图集 电子版
为你推荐
霍金为什么提醒我们不要寻找外星人原来这就是答案(外星人入侵)
高墙内的红色中国年陕西省宝鸡监狱开展春节主题教育活动
2017年雅马哈竞速之星 ds肥仔1100cc - 摩托车论坛|摩托车联盟|东北
宽窄逍遥中支新品上市价格及图片娇子宽窄逍遥中支香烟多少钱口感测评
仁爱!颈椎曲度变直是怎么回事?"那么便宜"-第2张图片-宠宝网
红砖墙创意这就是建筑的艺术
9.14 晓惠 《丰收节》 2020.9.14 长泽 《丰收节》2020.9.
唯美星空极光美景