图知网
搜索
首页
热门推荐
图片分类
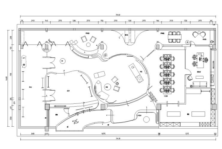
6ixty8ight内衣品牌店展示空间设计
下载原图
相关图片
服装会展展位设计|空间|展陈设计|它啦 - 原创作品 - 站酷 (zcool)
中国(深圳)国际品牌服装服饰交易会(fashionszshow)-时尚深圳展 深圳
[浙江]应尚服饰展厅展示装修施工图设计2021
合肥装修公司:简约服装店设计装修案例分享
600平服装展厅极简展现不同的美一野设计
重庆琦梵尼服装店1516721
为你推荐
念七 动漫手绘耐克标志橙色系背景
结婚25年分居14年妻子多次牵手小鲜肉他坐轮椅也不愿离婚
2次元可爱动漫女生唯美电脑壁纸合集
此外,有一种隐性脊柱裂发生在第五腰椎和第一骶椎之间.
面包虫怎么养怎么繁殖吃什么,农村李大爷都不懂
com37分钟18秒[home键]战地5battlefieldv剧情全流程实况解说01小试
逍客作为东风日产suv家族主力车型之一,自2008年进入中国市场以来
两层新古典欧式风格农村自建别墅设计 01如有自建房需求,欢迎沟通