图知网
搜索
首页
热门推荐
图片分类
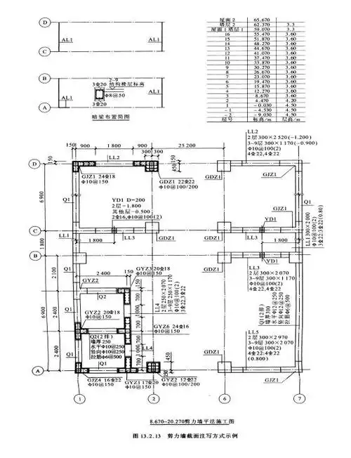
梁平法施工图的表示方法
下载原图
相关图片
梁平法施工图的表示方法
二层梁平法施工图
板平法施工图(精)
柱平法施工图如何识读
6(24)地下室外墙平法施工图平面注写示例
二层楼板平法施工图.dwg
为你推荐
露耳层次短发波波头和长卷发哪个发型更适合你
让人忧伤的唯美风景孤独长椅图片桌面壁纸
原创网友长沙偶遇郑秀妍汪苏泷录制新综艺声声如夏花期待合作舞台
有没有王者荣耀孙策表情包? - 知乎
有没有酷酷的女生动漫头像,显得高冷那种? - 知乎
遥远的她-张学友五线谱预览2
培训招生黑板海报背景
刺身食材鱼类图鉴,你都吃过哪几种?刺身都有哪几种品种?这是1 - 抖音