图知网
搜索
首页
热门推荐
图片分类
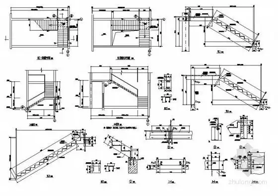
希望对大家的工作有所帮助《住宅空间楼梯节点详图合集》小编给大家
下载原图
相关图片
成都可乐教育靠谱吗正面楼梯怎么画教你漫画扶手楼梯的画法教程
[分享]楼梯构造详图cad资料免费下载
希望对大家的工作有所帮助《住宅空间楼梯节点详图合集》小编给大家
楼梯的建筑详图一般有楼梯平面图,楼梯剖面图以及踏步和栏杆等节点.
两折钢楼梯构造详图
[分享]楼梯构造详图cad资料免费下载
为你推荐
【tnt时代少年团】〖全体舞台直拍〗〖大时代〗→_→第二天→20231119
公众聚集场所投入使用,营业前消防安全检查合格证
30 w ,全村最靓的仔07#小鹏汽车 #小鹏p7鹏翼版
第五人格柴郡猫皮肤怎么得 柴郡猫皮肤获取方法
黑色背景上的柠檬
女生卡通手绘头像简约干净图片
面额是多少?
善恶终有报!这一次,再多的"名和利"也救不了演员刘涛了