图知网
搜索
首页
热门推荐
图片分类
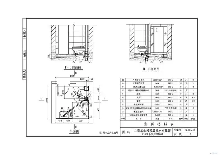
室外排水设计标准gb 50014 2021解读董志华 张福先 王宝金编gb50014
下载原图
相关图片
排水设计.排水,污水排水,废水排水,排水管道三通连接,弯头链 - 抖音
求助同层排水的图集是哪一本来着?
蓝水假期酒店给水排水工程设计【含cad图纸 文档】
求助同层排水的图集是哪一本来着?
排水系统原理图
卫生间排水管和排污管做法,需要的收藏.#装修 #室内设计 # - 抖音
为你推荐
い有趣头像
标签:欧美范,小男孩,小孩头像
【提前1天预约使用】人民广场| story hotdogee仕多利热狗,19.
《母鸡》油画欣赏
alsenor艾森诺渐进多焦点老花镜女进口镜片智能变焦远近两用眼镜可
毕节荞凉粉培训,荞凉粉怎么做,毕节荞凉粉的辣椒水怎么做?
中国南方航空南航波音7879梦想客机内饰精彩展示
如何正确测量自己上下胸围?一定要把自己的上下胸围量 - 抖音