图知网
搜索
首页
热门推荐
图片分类
g·wiz小机房电梯【行情 报价 价格 评测】-企讯网
下载原图
相关图片
电梯机房图片
电梯液压升降机
温岭市人民法院关于电梯 1台的询价公告
图1h420095-2电梯平面图
基于曳引式电梯的节能改造分析
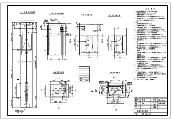
某大楼富士电梯专业装修设计图纸共11张
为你推荐
世界名画——阿道夫 ? 威廉 ? 布格罗作品——(8)——(人物肖像)
这个形状打破了我们固有的对珍珠形状的认知,所以很多人就会认为这是
今日更新短发直发发型图片(短直发会是你的最爱吗)_好房网
张若昀
母猪嘴套母猪防咬套猪嘴套仔猪防咬神器防母猪咬小猪嘴套现货速发
高清篮球图片下载
twitter推特图片如何去水印下载
如今我们深夜饮酒, 杯子碰到一起, 都是梦破碎的声音."北岛,写诗