图知网
搜索
首页
热门推荐
图片分类
案例:80平方宜德便利店平面规划设计
下载原图
相关图片
80平小型超市现代日式风格装修效果图
开80平米左右的生鲜超市.有利润吗?
80平小型超市现代日式风格装修效果图
带全套超市配套设施和货 - 抖音
80平小型超市现代日式风格装修效果图
开福区惠万家批发超市80平整体转让
为你推荐
小篆字体转换器(方正小篆体)
衡水市冀州中学组织开展中国地图拼图大赛_同学_地理_比赛
全自动公共厕所小便冲洗阀小便池感应冲水器明装陶瓷小便斗冲水阀
风景与场景速写
64512手写红色毛笔字顺丰包邮64521汽车贷款创意艺术字238941世界这么
线描手绘荷塘
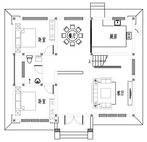
新中式二层别墅设计图平面图
中国各省轮廓形象图,大家看看自己的省份形象吗