图知网
搜索
首页
热门推荐
图片分类
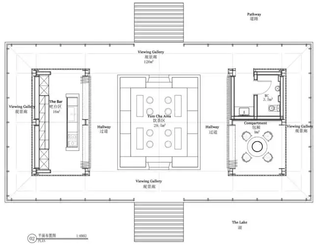
茶馆设计
下载原图
相关图片
乐山诗画山水茶楼会所 - 会所设计 - 第2页 - 李科设计作品案例
茶馆设计
茶馆室内装修平面布置图片素材
会所丁青茶楼
茶楼设计
茶楼平面求各路大师指点-平面规划-马蹄室内设计论坛-序赞网
为你推荐
漂亮的染了绿色头发的女人
得之我幸 失之我命
40原猫娘能给你带来多少惊喜你家猫猫有多可爱
倒影/少儿绘画作品/儿童画/网络美术馆_中国少儿美术教育网
地摊经济火,大型商场也来凑热闹,网友:室外购物相对更安全些
科技小制作小发明 自制泡泡机小学生创意手工diy材料科学实验玩具
幸福家园幼儿园中班宝贝与家长们的豆子粘画
京剧脸谱京剧脸谱 编号:lj120704时间: 0 53 付小波 发布到 花