图知网
搜索
首页
热门推荐
图片分类
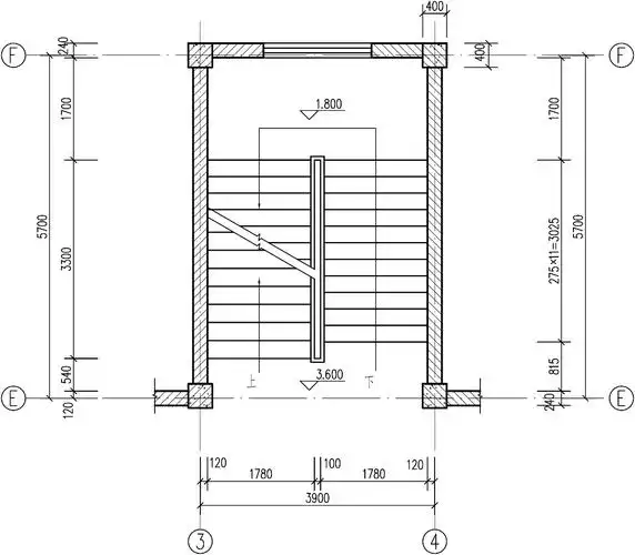
楼梯平面图
下载原图
相关图片
3米的空间能做u型楼梯吗,这样做出来的楼梯会不会很陡
某中学教学楼楼梯平面图如图所示下列内容符合规范要求的是
不锈钢楼梯护栏是我们在日常生活中看到的东西,在我们的很多平面图上
简单式钢结构楼梯平面立面剖面图
楼梯标准平面图
旋转钢艺艺术楼梯的设计
为你推荐
假面骑士woz厉害时代未来
08-08朗读者
活动 【原神】枫原万叶动态壁纸(附4k 1080p 原图)
生日贺卡粉粉嫩嫩很好看放在97里面姐妹一定会很喜欢~大家可以朋友
辛普森的一家
实锤铁证这个杂牌营长丧心病狂连八路军战绩也敢冒认
4a景区-71 天津天塔湖风景区
南昌浩英厂家供应一流拉丝机减速机齿轮箱