图知网
搜索
首页
热门推荐
图片分类
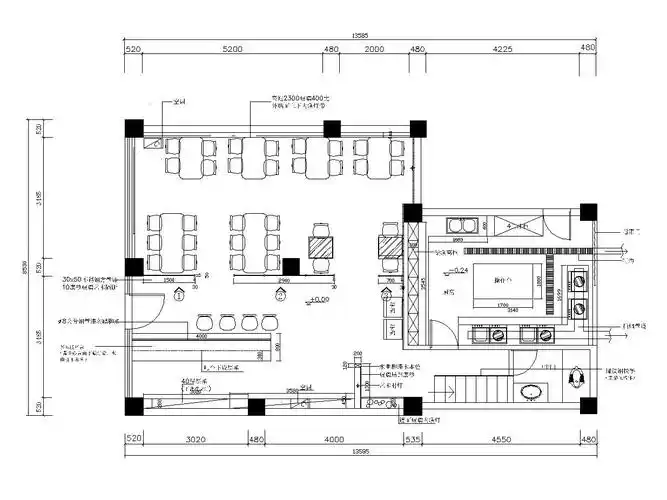
现代风格餐厅平面布置图
下载原图
相关图片
南宁特色饭店天花板装修设计图片
中式风餐馆天花吊顶装修效果图片
[分享]海天盛筵自助餐厅设计
餐厅吊顶效果图现代简约餐厅装修效果图欣赏
抬头就能看到的创意设计 精选餐厅天花板装修效果图
二层天花
为你推荐
1342 宋 官窑葫芦瓶
m768 0-5岁婴幼儿标准身高体重表墙贴2377写真贴画展板海报印制
etro2024秋冬系列时装秀##etro全球品牌代言人任嘉伦
上古时代写轮眼轮回眼开眼就跟玩似的咋现在开个眼那么难
【捡漏专区】gucci/古驰42码rhyton系列复古logo标识增高老爹鞋
举报/反馈评论列表(10条)深山夕照补刀大神呢?
最后是浴后全身按摩
小众高级氛围感男生微信头像