图知网
搜索
首页
热门推荐
图片分类
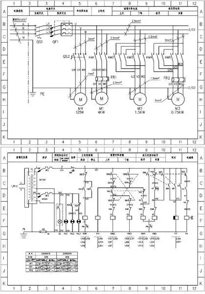
zh3140型摇臂钻床电气原理图电路1
下载原图
相关图片
攻钻两用机,两个接触器互锁怎样接线?
z35钻床电路图
攻钻两用机,两个接触器互锁怎样接线?
z37和z3050型摇臂钻床电气控制线路ppt
z3050钻床电气控制设计?
请问怎么must6613手电钻开关接线?
为你推荐
关晓彤非华晨宇不嫁(关晓彤,华晨宇不配参加)_可可情感网
加拿大2010年25分纪念币
遇见小清新南天竹
暴漫gif我没事gif我很好gif熊猫头gif伤心gif
三日月宗近
锁骨怎么画?教你画动漫小姐姐迷人的锁骨!
第八周四,六年级线上美术教学记录
i54460g1820i34170i54590e31230v31150针集cpucpu