图知网
搜索
首页
热门推荐
图片分类
许昕:有失有得,享受惬意人生.
下载原图
相关图片
原创原创10到14许昕出局无奈叹气王楚钦爆发连赢2大世界冠军
21岁为许昕退出国乒,33岁给他拼二胎女儿,姚彦的决定是对是错?
许昕登场3-0横扫广西小将,樊振东一旁观战,王曼昱仅战2项_比赛_团体
乒乓球直通wtt大满贯世乒赛许昕胜牛冠凯
许昕个人资料( 国手许昕的爱情故事,老婆是国乒第一美女,为他放弃整个
许昕:我不喜欢按部就班,不刺激_奥运会_比赛_混双
为你推荐
鹿晗图片最帅照片
眼科 眼眶病/眼整形 帖子详情发布于 2013-11-27 回复 收藏 1
赵舒城剧照
腹股沟有包就是疝气吗?
森林狼城市球衣
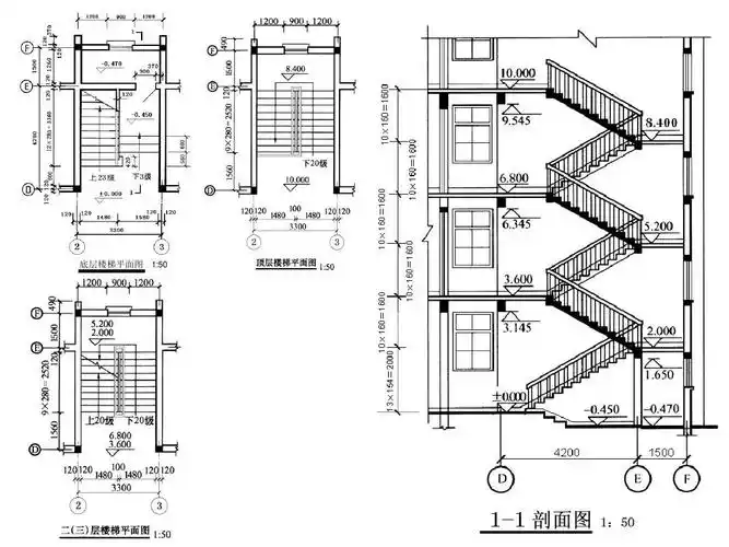
制图作业:楼梯答案ppt
西班牙斗牛舞表演
7名室友全部惨死,女孩仍与她们同吃同住,法医:我都做不到!