图知网
搜索
首页
热门推荐
图片分类
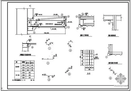
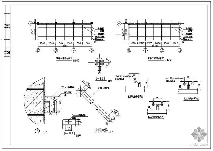
轻钢雨棚结构大样图详细资料
下载原图
相关图片
混凝土雨棚构造节点大样施工图cad
[节点详图]某钢结构玻璃雨篷结构节点构造详图
[节点详图]某矩形玻璃雨篷节点构造详图
[分享]钢结构悬挑雨篷结构资料下载
点式玻璃雨棚图
某钢结构雨棚节点构造详图
为你推荐
赵丽颖 啊啊啊金色裙子,老婆好美!头发编了,是卷发 - 抖音
angelababy性感优雅写真桌面壁纸
全球最懒的鱼,喜欢搭顺风车,不费力气周游世界!
段宁写的行书乌
nba篮网队球衣壁纸
李沁《庆余年》剧照高清手机壁纸_明星_手机壁纸下载_美桌网
张舒扬的老公
盲人水壶设计