图知网
搜索
首页
热门推荐
图片分类
临地铁 正南朝向 密度低 精装好房 高楼层视野好 交通便利,中芯花园
下载原图
相关图片
北京中芯花园2室2厅2卫124㎡南北590万
南北通透 高楼层视野无遮挡 近地铁 满五 交通便捷,中芯花园(西区)
中芯花园(北区) 低密度社区 满五 商品房 南向采光好
12#03户型
超级捡漏房中芯花园性价比超高的地铁房
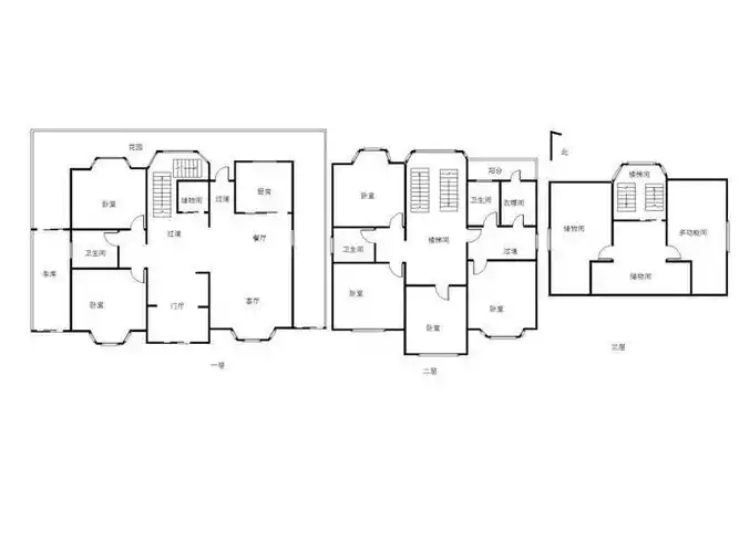
中芯花园(别墅) 5居
为你推荐
张馨予红白发造型
岳麓书院
原创江苏盛产美女来自江苏的20位女星个个如花似玉楚楚动人
军阀
头像框
御姐范动漫头像高冷霸气女头像动漫女王范
兰亭修序图长卷王羲之兰亭序书法国画工笔画人物山水
江苏·泰州-历史沿革-地图动画_哔哩哔哩_bilibili