图知网
搜索
首页
热门推荐
图片分类
地台大样做法791579157915 ···0202020202
下载原图
相关图片
大模大样
04 梁支模大样图
【石家庄博物馆】20180516室内cad晚班-第19课时-作业帖
【木门窗大样图】门窗剖立面图02.pdf 1页
12剖面,大样图-model
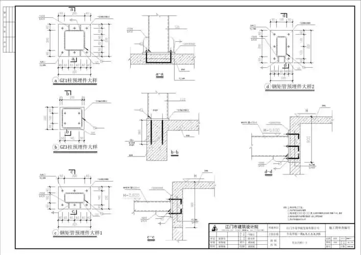
预埋件结构大样图-1
为你推荐
盘点娱乐圈明星年轻和衰老时前后对比照: 一位白了头发让人心疼
氛围感辣妹甜酷猫系妆容附教程
华晨宇呆萌的照片头像 头像图片大全 -【爱个性】
求关注公众号表情包配图
新浪体育nba全明星赛 | boqpod荚果
电影篇五谁说国产恐怖片不行为大家推荐近年来好看的十部国产恐怖片
第二次买oppo,昨天入手reno7
拉森火山国家公园,加利福尼亚,美国