图知网
搜索
首页
热门推荐
图片分类
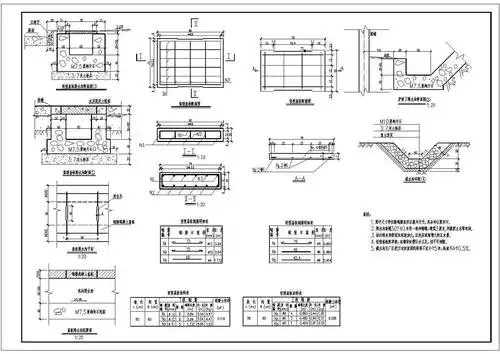
排水沟结构图-道路
下载原图
相关图片
排水沟大样图
截水沟排水沟大样图
体育场排水沟土建详图2018(cad)-混凝土节点详图-筑龙结构设计论坛
经典轻型及重型盖板排水沟结构设计cad全套施工图(甲级院设计)
某排水沟cad设计图
排水沟1
为你推荐
【火玫瑰】经典港剧uncle rain×海潮复仇女神的爱情故事温碧霞
鞠婧祎壁纸:一身绿色吊带裙,仿佛是从丛林中走出来的仙女
arcgis|湖北省县区分布棋盘图|空间分析|arcmap|地理信息科学
紫色系"小猫"61女生头像~ 有没有特别喜欢猫耳头像的~ "我拿什么
考古陈嘉文,满三十减二十的小可爱#陈嘉文 #苏尚卿 #西呱双 - 抖音
贺军翔时尚写真
yaw(偏航角),pitch(俯仰角)和 roll(翻滚角),以及沿笛卡尔坐标系中 x
道路交通标线大全及图解整理_第1页