图知网
搜索
首页
热门推荐
图片分类
动漫头像女 | ins高级质感 今日份动漫女生头像来啦,高级ins质感,谁不
下载原图
相关图片
女生头像|银色系ins高级感小众可爱卡通 银色系女孩头像02
动漫女ins高级质感头像95
女生头像动漫ins高级质感
优质氛围感女生动漫头像# 女生动漫小众ins
动漫女头像95| ins高级质感
78精选女头|漫画风ins优质头像94
为你推荐
徐伯清写的鬼
蘑菇发夹附图解
正版蔬菜精灵菜狗娃娃抱枕玩偶睡觉抱白菜狗公仔毛绒玩具生日礼物
p>鳖(学名: i>pelodiscus sinensis /i>)是鳖科,鳖属动物.
夏日穿搭黑色系萌妹子蓬蓬裙可爱遮肉
中国人民解放军1987式军服
蝴蝶大自然美丽的舞者
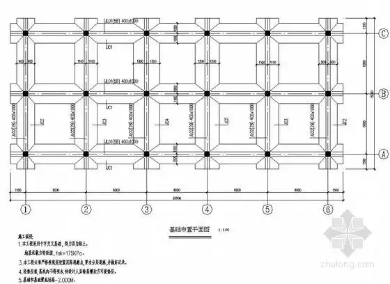
[分享]条形基础节点图纸资料免费下载