图知网
搜索
首页
热门推荐
图片分类
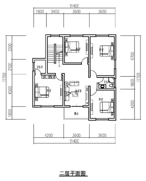
9米11米3款农村别墅图纸好看又实用型小户型中的经典
下载原图
相关图片
宽11米的三层别墅,方正大气,9房 堂屋,农村建房必备的参考户型
农村自建三层别墅,面宽11米,9室1厅布局好,家里人口多也不发愁
9米11米3款农村别墅图纸好看又实用型小户型中的经典
开间9米,进深11米,左右没邻居,三层农村别墅怎么设计?
宽9米长11米农村自建房该怎么设计
9米11米面宽户型对比,农村自建房,究竟哪个好?
为你推荐
适合幼儿园小朋友画的春天 - 抖音
乔迁之喜请柬请帖新居落成2021进宅搬家上梁入伙喜帖邀请函打印
彩铅带珍珠耳环的少女
led全彩控制器怎么接线?
第一节 正常胸部ct影像 一,纵隔 二,肺
若是男人的眼睛狭小而细长,看起来一副贼眉鼠眼的模样,则有这样面相的
南京传媒学院国际本科7575艺术生
万国觉醒城市好看布局图