图知网
搜索
首页
热门推荐
图片分类
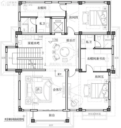
二层别墅自建房设计推荐含效果图
下载原图
相关图片
别墅平面设计
欧式三层别墅设计图平面图
欧式三层别墅设计图平面图
别墅△一层平面图(左侧为北) 一层以待客休闲功能为主,设计师根据业主
新中式二层别墅设计图平面图
欧式三层别墅设计图平面图
为你推荐
这张照片信息量太大有一种友情叫杨幂baby张大大
早春里各种绿色的穿搭和点缀正流行
璀璨音乐矢量背景素材
寺庙2米2三霄娘娘树脂玻璃钢佛像神像送子奶奶眼光娘娘泰山奶奶
男虎与女狗合不合,男虎女狗合不合婚
四层办公楼建筑设计lumion渲染效果图
blackpink #lisa #五花肉cp lisa头像 - 抖音
自己感染了新冠病毒后咽喉肿痛,嗓子真的很像剧里的安陵容