图知网
搜索
首页
热门推荐
图片分类
亚克力橱柜门板具有哪些优缺点 亚克力橱柜门板的质量
下载原图
相关图片
相较于其他材质,亚克力橱柜门的多彩,高亮度和易加工性也是独树一帜的
亚克力门板橱柜图片
【橱柜】玻璃亚克力门板 - 抖音
亚克力门板橱柜价格
橱柜门整体橱柜橱柜门板定制亚克力板爱格板高光云石门板定做
亚克力柜门配戈兰迪的一拍即合-----保集外滩张先生家实景图
为你推荐
哈咪猫大声说表情~辛苦了
最新六年级语文期末试卷这个学生99分来看老师给分有没有问题
世界上寿命最长的十大动物 灯塔水母可以实现永生!
开封小宋城
清香的桂花简笔画
也就是通常所说的大转子部脂肪异常堆积,同时也会出现臀裂两端有很多
复古油画婚纱照 | yyds
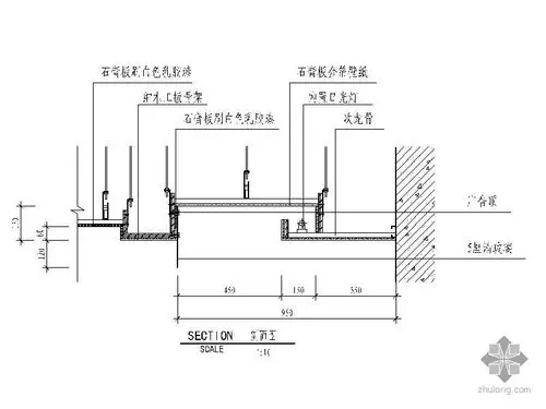
类别:室内设计 > 室内节点详图 发布时间:2009-07-08