图知网
搜索
首页
热门推荐
图片分类
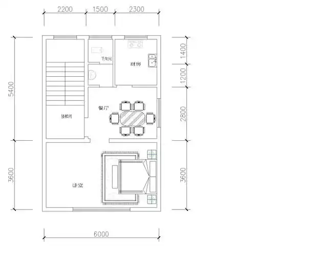
9米宽建别墅,施工队推荐这3款设计图,大部分人都会选择第一栋
下载原图
相关图片
长9米宽6米框架结构房屋怎么设计,楼梯设在那里要一厨一卫一卧室
长9米宽6米框架结构房屋怎么设计,楼梯设在那里要一厨一卫一卧室
6套面宽不足9米的农村自建房小巧精致功能全
8款开间9米别墅设计图,造价经济,只要20万就够了
农村自建二层楼房砖混结构,一楼大厅9米6米见方高3.
4款开间9米别墅占地90平造价30万谁看了都赞建的有水平
为你推荐
董思成好可爱
花臂纹身图案大全_花臂纹身图片_纹身花臂手稿_半臂纹身_第132页
《我爱偶像》录制 钟铉
新版:国家通用手语国歌_聋人
松叶蕨
蒋小涵嫁给平凡的老公36岁高龄生子家庭美满幸福
赵本山.东北二人转
消音| 朱迪探案【疯狂动物城配音练习】英语配音 高清片段