图知网
搜索
首页
热门推荐
图片分类
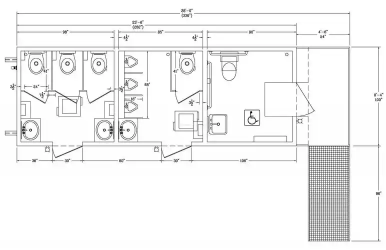
某大型商场公共卫生间平面图设计
下载原图
相关图片
城市公共厕所设计尺寸标准化指引
卫生间平面尺寸
[分享]公共卫生间的布置和设计总结
小型商场公共卫生间平面图设计
商场公共卫生间室内平面图
16j914-1:公用建筑卫生间
为你推荐
适合中年大叔的漫画头像,看着成熟又稳重 适合中年大叔的漫画头像
可爱小酒窝搭配六块腹肌__财经头条
【包邮包税】 hermes爱马仕 21年秋冬 男士 西服外套 vest 24 light
恐怖眼睛
1995年林青霞初为母亲怀抱幼女邢爱林参加活动
读书长腿叔叔一生一场童话
鲜竹笋炒肉
图文:[nba]步行者103-98雷霆 伊巴卡抢篮板