图知网
搜索
首页
热门推荐
图片分类
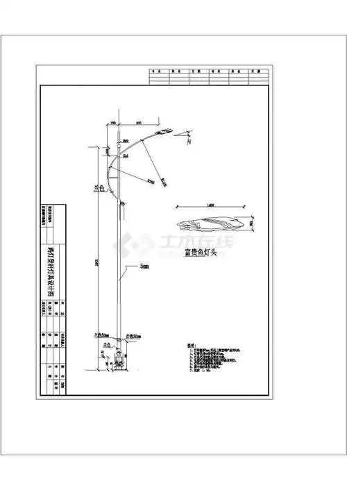
某地不同杆高的常用路灯基础cad示意图图纸
下载原图
相关图片
路灯设计图cad
某地6米高led太阳能路灯cad图纸
厂家直销可定制 led太阳能路灯 led道路照明灯 30w太阳能节能灯
某地6米高led太阳能路灯cad图纸
道路边坡景观工程及路灯亮化工程施工图2018-路桥工程图纸-筑龙路桥
太阳能路灯通用图纸
为你推荐
紫霞仙子朱茵,一颦一笑倒众生
无敌可爱彩虹独角兽的简笔画独角兽简笔画独角兽简笔画彩虹独角兽飞马
元彪
李秀满超话 都怪李秀满##李秀满戴了superm戒指
不死川实弥 - 葛mi - 抖音
学生在桥上走的简笔画 简笔画图片大全-蒲城教育文学网
软妹
阿伟