图知网
搜索
首页
热门推荐
图片分类
琼台师院美术系环境艺术设计专业2017-2018第2学期《商业空间设计项目
下载原图
相关图片
儿童书吧|空间|其他空间|wqy5201314 - 原创作品 - 站酷 (zcool)
根据甲方的空间规划需求,屈设计师对数字化体验区,奖项展示区,互动
色块和几何图形勾勒出的趣味空间 | studio fortyfour-建e室内设计网
玩味空间 lightspace play ground展示与办公设计欣赏
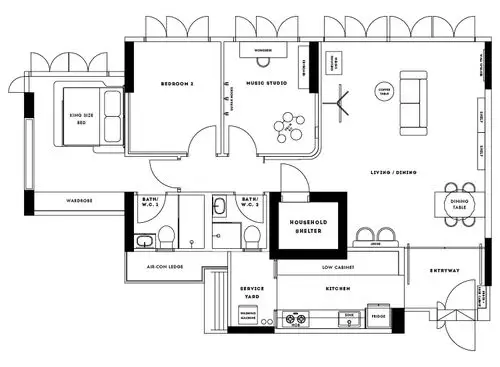
户型改造125㎡趣味空间设计之环绕
第11讲 儿童房空间定制 - 云琥在线 - 互联网视觉设计在线培训专家
为你推荐
55岁黄秋燕生活艰辛,理发店工作补贴家用,今直言不恨李连杰
水袖舞
云南昆明dytz液压推杆安源电液动推杆
头条:吴秀波最新消息,持续更新![图]
拥有"鹰钩鼻"的5位明星,最后两位因长得太像被误认是"兄妹"
吉祥物
艺术家浅棕色条纹蜡笔纸垃圾纹理
健脾祛湿这些食物可以哇73