图知网
搜索
首页
热门推荐
图片分类
分享美容院立面图cad资料下载
下载原图
相关图片
分享cad门厅立面图资料下载
分享cad家装电视墙立面图资料下载
分享欧式立面cad图库包含电视背景墙欧式家具床头背景墙楼梯门类等
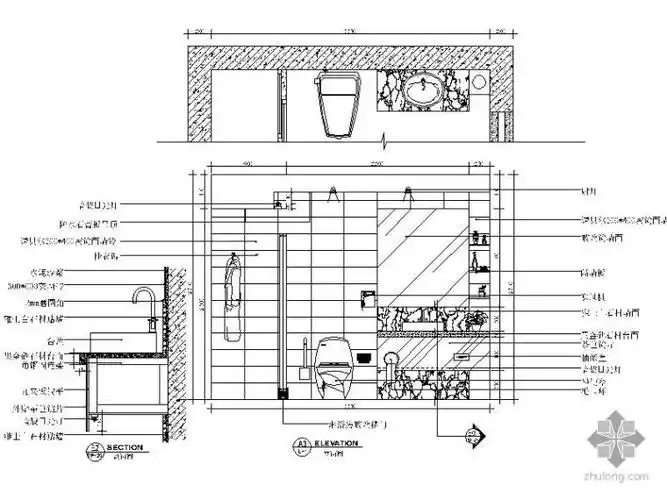
分享cad家装卫生间立面图资料下载
客厅经典分空间cad立面图库
分享cad现代客厅立面图资料下载
为你推荐
一头牛,一只虾,一个喇叭,组成一个成语,这不是难为人吗?
声乐艺术
假发男短发韩版帅气中分短直发逼真蓬松短发少年黑色学生头全头套
四款冰激凌简笔画教程.教你用梯形 u画美味又简单的冰激凌简笔 - 抖音
威浦wy系列航空插头插座 北京京明德电气公司
lyh1008系列立式磨粉机
新《x战警》曝海量人物海报 众星云集气势磅礴
猎天使魔女3 三部曲最终剪辑:沉醉在贝姐的魅力中吧-薇欧拉角色曲「gh