图知网
搜索
首页
热门推荐
图片分类
女童凉鞋儿童公主鞋小学生2021夏季韩版新款时尚中大童女孩
下载原图
相关图片
鸿星尔克旗舰官方店女童凉鞋新款夏季黑色运动凉鞋儿童凉鞋公主款小童
女宝宝罗马凉鞋2022年夏季洋气婴儿软底公主小童女童鞋子黑色17
迪士尼disney同款女童凉鞋季2022新款女孩公主软底鞋子女童宝宝中大童
儿童凉鞋女小学生拉链鞋新款夏季童孩罗马公主中大童休闲巍妙黑色26码
女童宝宝5女公主儿童平底童鞋罗马小童黑色凉鞋
夏季新款皮男童凉鞋中大童男孩沙滩鞋宝宝鞋韩版潮儿童凉鞋 1_黑色 39
为你推荐
风舟驭金天然气再现多空拉锯战双eia年尾狂欢引瞩目
阿松,动漫,二次元阿松
这会不会是你醉生梦死的丫丫 #最美脚丫# #美脚# #美甲
【第十三届中国数字出版博览会】飞天之上看家园 中国地图出版社送给
天官赐福 #刻纸 尝试,感觉还不错底稿来自
管道最大允许跨距表
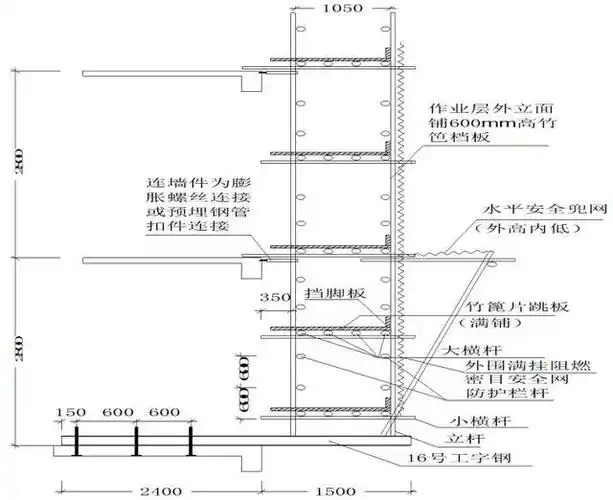
脚手架技术手法不到位,危险增加99%你细品
然而,胸痛并不一定是心梗的症状.