图知网
搜索
首页
热门推荐
图片分类
一层平房设计图,农村住宅的最爱,喜欢就建起来_盖房知识_图纸之家
下载原图
相关图片
占地14*14米,5层新中式别墅-全套设计图纸 - 乡村住宅在线
农村房屋平面设计图及效果图
7套经典新农村住宅户型设计,全套图纸拿回家,建好漂亮又实用
农村小别墅建筑方案设计全套cad图纸
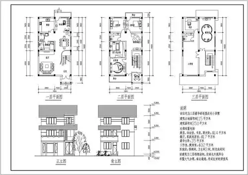
农村宅基地三层三间楼房设计图纸(农村房子设计图三层楼平面图整套)(2
农村自建房10.3米宽10长米,怎么设计三房两厅带楼梯,求各位大师帮忙!
为你推荐
古风动漫情侣头像,愿你在彼此看不到的岁月里熠熠生辉!
样宽缘母钱公博评级美82铜币收藏_古币_图片价格_收藏鉴定_7788钱币网
红色(t恤 长裤) m【图片 价格 品牌 报价】-京东
设计师steve tyler创作的太空战舰欣赏
岛风壁纸合集
诗词精读分享鹿柴唐王维
幼儿园大班四月教学工作计划表格版
辉煌玫瑰