图知网
搜索
首页
热门推荐
图片分类
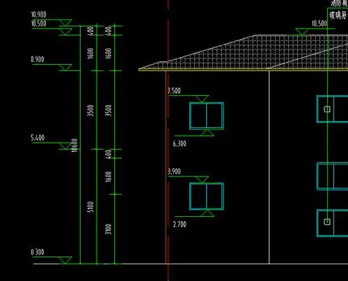
这张建筑立面图里的标高的意识是什么?
下载原图
相关图片
南立面的总标高是屋面标高是
标高符号怎么看?
cad标高符号怎么画
建筑物各个方向的立面图室外标高不同
标高符号 建 筑 制 国 家 标 准 简 介 何培英
建筑制图(cad)标高符号是怎么画的?
为你推荐
张翰同款眼镜框男复古潮近视可配有度数半框防蓝光防辐射眼睛框架
北宋 汝窑天青釉洗 台北鸿禧美术馆旧藏 .
仙女的颜值魔鬼的身材王晓晨经典作品盘点不靠炒作靠作品
33岁张芷溪显老气?看完她才发现金瀚的眼光,怪不得官宣了
星辰/优质女头/ins:少女的征途是_女生头像_我要个性网
君麻吕
蛋龟玩家的自我修养_龟龟
富士康专门为生产下一代苹果手机而打造的最新车间,正在紧锣密鼓地