图知网
搜索
首页
热门推荐
图片分类
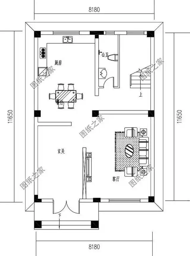
三间二层农村楼房带车库户型_二层半农村房屋带车库_农村4间2层
下载原图
相关图片
100平小面积三层实用户型 二间三层农村自建房设计二层半房屋352
占地仅70平米的二层半三层别墅设计图,合理利用空间,创造舒适的小别墅
农村自建房别墅设计施工图纸现代两间二层半三层简约小楼房效果图
两间三层小型别墅图片农村两间三层半新款别墅小开间也有大奥妙速速
二层半三层农村别墅设计图占地仅80平外观豪华大气室内合理布局
新款农村自建别墅二三层半楼房设计施工图纸全套效果欧式简单经济
为你推荐
古风美男
网友坐地铁偶遇马思纯,小马瘦身成功,不用修图也美回出道时
抖音搞怪逗比头像图片
长颈鹿英文卡通图案
20170630大悲咒
俄罗斯美女嫁江苏小伙,见婆婆收红包到手软,后弟妹也来中国_娜塔莎
《独往 江湖》_人像_poco摄影,古风,汉服
杨家玉:想做冠军也想做女神,奥运是最初的梦想