图知网
搜索
首页
热门推荐
图片分类
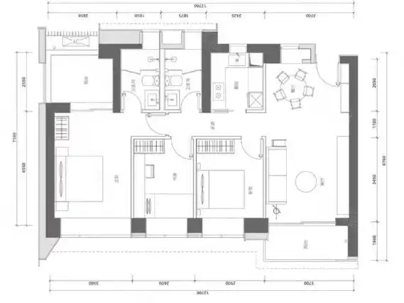
华润城润玺二期
下载原图
相关图片
润玺二期全套户型图发布摇它还是等前海润峯府
深圳南山大冲华润城润玺(二期)总裁级大平层!
深圳南山大冲华润城润玺(二期)华润城润玺(二期) 4室2厅3卫 270平 精
【独家选房攻略】润玺二期最新户型图流出,最快11月入市?
深圳南山大冲华润城润玺(二期)华润城润玺(二期) 4室2厅2卫 精装修
华润城润玺二期最后一批房源户型图曝光
为你推荐
成渝旅游自由行一一江北机场夜景
三国时吴国的名将有哪些 三国时期东吴名将凌统简介
做人不能太计较
why you should be a major gift officer
艺术摄影:好喜欢这样清纯运动型的热裤美人!
每日靓车图赏布加迪chironsupersport开箱完整版来了细节拉满
无名卫士张汉超剧照 张汉超无名卫士剧照
信息来源:皖事通原标题:《安康码"隐藏功能"揭秘!》