图知网
搜索
首页
热门推荐
图片分类
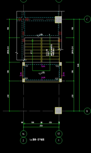
三跑楼梯的投影面积怎么计算呢?还有投影面积在平面图上怎么圈啊?
下载原图
相关图片
自建房三跑楼梯怎么设计?
这三跑楼梯计算一次投影面积吗?求老师解答一下-服务新干线答疑解惑
这种三跑楼梯混凝土投影面积按几层算,框选范围是哪里,谢谢老师-服务
跑楼梯
还有楼梯设在饭厅位置位置够不够?
120488被赞:37361这个不是标准的三跑楼梯,中间的有宽出楼梯板
为你推荐
女生头像 暗黑系列 动漫头像
猫壁纸【324】(动物静态壁纸) - 静态壁纸下载 - 元气壁纸
黄夏温 #哈温表情包 #哈温 - 抖音
奚梦瑶说22岁的金沙很漂亮_音乐_才华_代表作品
腹肌 #撩起衣服就是腹肌 #不露脸系列 #禁欲系 #体育生 - 抖音
【gd游戏图鉴】vol.75 十年打造的精致幻想,《最终幻想15》高清壁纸赏
儿童古装汉服古代古装幼儿书童男童国学三字经弟子规演出表演服装
《we are.》——手工儿童立体书