图知网
搜索
首页
热门推荐
图片分类
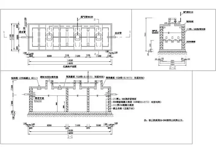
sbr池平面图
下载原图
相关图片
垃圾池详图
某地砖砌化粪池cad扩初图,可编辑(13号砖砌化粪池,无地下水,不过车
垃圾收集房设计方案图
学士含油废水毕业设计资料下载
某600吨天废水处理及中水回用工程设计
垃圾池设计方案
为你推荐
最新到店2008年丰田汉兰达 3.
准爸爸体验"生孩子"的过程和痛感,之后感叹妻子不易!_网易订阅
挑染小国跑弹系列少年感溢出来了宝贝嘛~放学后发来的自拍"姐姐有没
揭秘殡仪馆遗体化妆师工作:坦然面对世俗偏见
复式楼梯装饰画轻奢转角拐角墙面壁画三联走廊过道挂画银杏叶麋鹿
《天官赐福》花城和谢怜,高清壁纸图片,动漫人物-回车桌面
桂花花瓶编制
我的世界:红怒艾利克斯以为赢了?全能him让她感到绝望