图知网
搜索
首页
热门推荐
图片分类
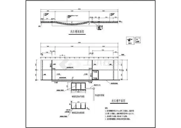
洗车槽冲洗区cad施工图纸洗车池详图自动洗车台建筑工地大样图
下载原图
相关图片
建筑工地洗车机全自动洗轮机工地洗车台工程洗轮机工地洗车机
一个实用的洗车池图- 详图,图库图纸 - 沐风网
某建筑工地洗车槽建筑设计cad图纸
工地洗车池图集 - 2020年最新商品信息聚合专区 - 百度爱采购
cn113085794a_一种洗车槽及洗车系统在审
十套工地现场实用的洗车槽 沉淀池cad施工图纸
为你推荐
他好宠她!二十年前的林依晨和贺军翔太好看了!
天天向上:天天兄弟挑战吃虫子,看到虫子那刻,王一博脸色都变了
冷酷帅气的qq男头像,要00后的哟
玄彬现身新品发布会 西装革履展巨星风采
夫妻纪念日_纹身图案手稿图片_吴效忠的纹身作品集
犬夜叉壁纸
硌狮
钻石怎么画