图知网
搜索
首页
热门推荐
图片分类
车还没提呢,就停产半年了?_太平洋号
下载原图
相关图片
普利司通8家轮胎工厂临时停产
小滚针撂倒汽车业200多个车型将停产舍弗勒断货危机的真相是
"一刀切"被禁止!向集中停产等粗暴行为说不!
6为什么会停产
电子烟品牌flow宣布7月1日起停产非烟草味烟弹
山东15条陶瓷生产线停产
为你推荐
机皇预定 10月中旬心系天下w22君临天下,发布会抢鲜了解
线描画花纹简笔画
95守护雪山精灵责无旁贷95祖峰@祖峰工作室饰演中年龙勇诚@袁姗姗
那不勒斯在晚上
男生霸气侧脸头像 高清好看的男生头像冷酷帅气侧脸清晰图片
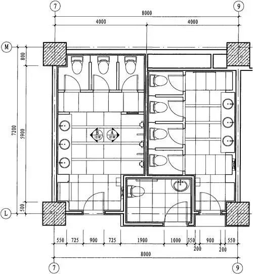
一层公共卫生间平面布置图 1:75
沦陷完整版歌词
晋城工匠孙永胜高平十大碗传承人