图知网
搜索
首页
热门推荐
图片分类
猪舍
下载原图
相关图片
阳光猪舍阳光杀菌,代替消毒药!
金宝公司空荡荡的猪舍
供应保温猪舍
我与猪场二三事
养猪专家说建猪舍时注意这一点养猪赚钱更轻松
脏乱差的猪舍
为你推荐
女生头像部位女头半身性感长腿胸器搭
打开电脑,在桌面空白处右击鼠标,在弹出的下拉菜单中,选择【个性化】
顶顶五官大变,长大后令人大吃一惊,难怪董洁拒绝潘粤明相见
锁屏微信消息提醒 - 堆糖,美图壁纸兴趣社区
忌平庸情趣内衣性感心动内裤女士透明网纱火辣骚丁字裤低腰蕾丝t裤g
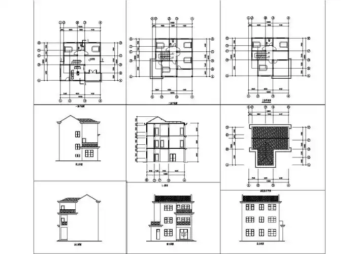
农村住宅设计方案图图纸(含图例说明)
外墙窗框
脖子淋巴瘤早期图片_有来医生