图知网
搜索
首页
热门推荐
图片分类
传承古法酿酒 弘扬民俗文化
下载原图
相关图片
科普古代的中国是怎么酿酒的
古方酿酒
古代有用"七月七"水酿酒的传统
古法酿酒
中国山西省永济鹳雀楼景区古人酿酒场景
古代陕西酿酒述略(下)
为你推荐
医疗卡通手绘世界献血日护士给女子抽血人物素材献血人物
交通警示标识标线大全(自整理).doc
鲁班新皮肤醒狮价格多少钱才能获得这款皮肤
5月30日,寒亭的魏女士反映,前段时间她通过微信给客户转账1万元
军训特辑丨最美女教官巾帼青春显芳华
阴天下雨打雷,就发几个闪电吧
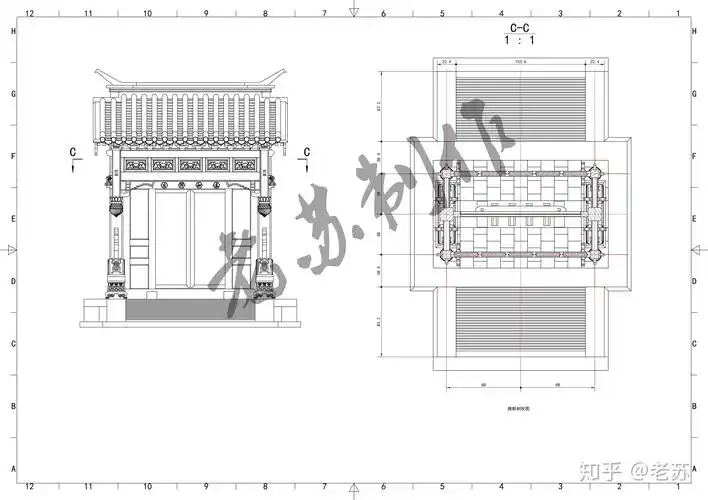
垂花门里的那些事 三维图解垂花门结构 - 知乎
m)2016最新的规模化猪舍设计图200-300头育肥猪猪舍设计图大棚养猪