图知网
搜索
首页
热门推荐
图片分类
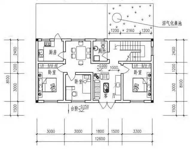
8x12米平房设计图纸,合理利用空间,户型简单实用,适合农村建房实际
下载原图
相关图片
咱老百姓农村建房实用户型 12米x8米 含平面图
准备在农村建2层半的房子,8x12米,自己设计好了平面图,请大仙指点!
8x12米的农村自建房屋,第二套绝对是惊人的,而且价格比你能想象的还要
农村长12米宽8米建房子 准备建3层半怎么设计
678米12米新农村自建房设计图经济又实用赶紧收藏
如何将开间8米,进深12米且坐北朝南的房子设计为三层别墅?
为你推荐
侯峰华为的成功令迷信西方的主流经济学家们哑口无言
古风情侣头像,喜欢就抱走吧(2)
葡萄苹果篮-水果食品高清桌面壁纸
现在新闻也经常关注钱枫的体重和头围,这其实也会让明星感到压力,毕竟
大芬油画又找到几张精美绝伦的孔雀
佳能5d55dmarkv图赏
三开单控开关,我要怎么接线,好多孔不知道怎么接了?
艾特你的小灰灰给你画.大眼萌狼#简笔画 #可爱头像 #绘画过 - 抖音