图知网
搜索
首页
热门推荐
图片分类
今天的讲故事比赛活动到此结束,谢谢大家!
下载原图
相关图片
没有谈恋爱?这个七夕~让我来帮你把个妹子吧!
彩色卡通谢谢聆听谢谢艺术字
ppt最后的结束语ppt结束语谢谢模板2022已更新今日推荐
ppt谢谢观赏的背景模板(可爱,俏皮,实用)(1)
红色音乐个人工作复盘工作总结ppt模板-谢谢
简约圆形谢谢大家ppt结束语
为你推荐
为何和尚只敲木鱼,不敲木虎,木龟或木鸡呢?|一日三省
欧美时尚女性人物私房肖像商业摄影图片素材-丹麦摄影师henrik adams
破旧的农用拖拉机图片(15/15)
人家别墅外墙漂亮的线条原来是这样做出来的怪不得我家那么丑
【 中国传统纹样 · 《凤纹 》】--- " 凤象征吉祥的神,凤纹亦称凤鸟
上门安装别墅屋檐雨水槽铝合金天沟檐沟阳光房排水槽
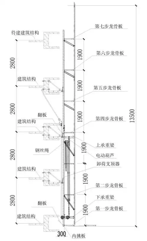
30分钟升降一层爬架关键技术详解
可爱卡通头像带字