图知网
搜索
首页
热门推荐
图片分类
剖面图
下载原图
相关图片
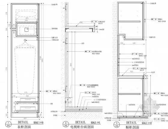
电气剖面图如图三~图五所示,在实际设计中
剖面图
墙面剖面图05.jpg
[山东]时尚现代五星级度假酒店室内设计方案电视柜剖面图
[成都]三室两厅样板间全套施工图剖面图
多款吊顶天花剖面详图-室内节点详图-筑龙室内设计论坛
为你推荐
175和150秋季情侣穿搭 | 元气满满 | 小个子穿搭
张杰杭州演唱会
分享一组ps素材
严厉惩办一切反革命巩固民主政权,公判大会老照片
厦门进入全年"最热月"!新台风酝酿中…_天气
荣淘牛角工艺品大摆件天然办公装饰牦牛角工艺品二需要更大支持需预定
车友晒父亲收藏的1991款奔驰600sel,初代虎头奔,大灯配雨刮器_搜狐
日本钻石公主号64人确诊邮轮已成漂浮的监狱