图知网
搜索
首页
热门推荐
图片分类
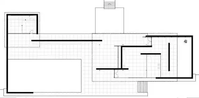
密斯凡德罗丨巴塞罗那博览会德国馆
下载原图
相关图片
密斯设计的巴塞罗那馆平面
从哈贝住宅看密斯的院落设计思想
纪念密斯凡德罗诞辰133周年永远的教父永恒的lessismore
纪念密斯凡德罗诞辰133周年永远的教父永恒的lessismore
范斯沃斯住宅密斯重访密斯的牵绊之旅
「国美考研」建筑师之密斯·凡德罗,带你了解密斯的建筑艺术之路!
为你推荐
潇洒又简单利落的个性签名从今天起余生做个俗人
西宫硝子头像 想拿就拿 拿了记得吱声 不好看勿喷
几张神奇的裸眼3d图
藕饼
好书推荐《追风筝的人》"为你,千千万万遍".版权售出70个国 - 抖音
《雷神4》:索尔演员接受高体能训练,这肌肉太不像话了!
是七八年前金鹰卡通播的动画 好像是说异世界的骚动引起现实世界的异
玉溪-初心 - 知乎