图知网
搜索
首页
热门推荐
图片分类
绣出美好广式生活——《广绣历史文化与传承展》在京开幕
下载原图
相关图片
孙东宁讲述十八勇士强渡大渡河的英勇故事.
孙继先将军之子孙东宁来棉开展红色故事会永远的长征讲座
主题学习环节,孙东宁老师以《"两弹一星"与东风基地——酒泉卫星发射
2015年5月19日,八路军129师第二旅旅长孙继先之子孙东宁接受新京报
孙东宁中国酒泉卫星发射基地首任司令员孙继先之子,"两弹一星"历史
开国将帅里十大武林高手,许世友也未进前三,第一位当之无愧
为你推荐
儿童舞蹈服装女童练功服女孩芭蕾舞裙幼儿短袖夏季中国舞跳舞衣服
怎么跟女生说早上好显得有幽默感 微信早上好图片
皮卡都有哪种不错的
当年谁没为仙剑奇侠传一中,刘亦菲饰演的赵灵儿心动过
概念手写的海报微笑每一天创意图形模板刷字体励志名言
射雕英雄传
阴阳五行对照表最全完整综合版
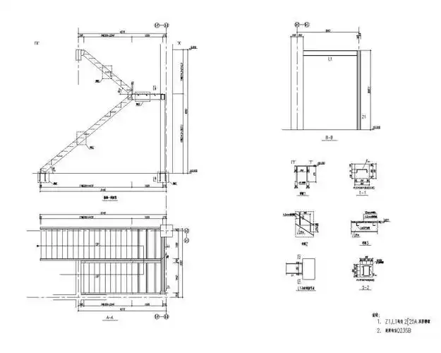
多种钢结构楼梯施工图 (cad)